ООО ПРОМСТРОЙ Стропы, Траверсы, Захваты от производителя Тали, Лебедки, Домкраты от дилера
  • Стропы, Траверсы, Захваты от производителя
  • Тали, Лебедки, Домкраты от дилера
Наш адрес: 125212, Москва, Головинское шоссе, д. 5, офис 29
Телефон:  (095) 730-31-65, 542-26-25
e-mail:  stropovka@yandex.ru
ООО "ПРОМСТРОЙ"    

О нас / Продукция / Тали / Тали Ручные шестеренные США и Польша / Тали рычажные США и Польша / Каретки для ручных талей США и Польша / Тали электрические США / Каретки для Талей электрических США / Технические характеристики на Каретки для электрических талей США / Консоль для Тали электрической США / Тали электрические Россия / Электотельферы Болгария

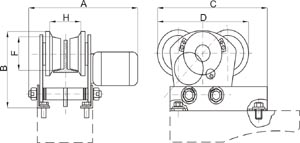
Технические характеристики на Каретки для электрических талей США

Технические характеристики на Каретки для электрических талей США

 

Артикул: .350 .347 .349 .348
Грузоподьемность, кг 0,5 0,5 1 1
Особенность: электрическ. ручная электрическ. ручная
Монтажная высота,м 3 3 3 3
Скорость перемещения, м/мин 16,4 - 16,4 -
Энергопотребление, В 220 / 230 - 220 / 230 -
Мощность мотора, Вт 60 - 120 -
Скорость, об/мин 1400 - 1400 -
Радиус поворота, м 1 1 1 1
Ширина балки Н min - max, мм 68 - 110 68 - 110 68 - 110 68 - 110
Номер двутавра 10 - 22 10 - 22 10 - 22 10 - 22
Размеры, мм A 310 205 330 210
B 210 210 210 210
C 315 315 315 315
D 245 245 245 245
F 76 76 76 76
Вес нетто, кг 14 11 16 13
Вес брутто, кг 15,5 13 18 14,5
Габариты в упаковке, мм 360х280х230 360х280х230 680х440х230 680х440х230
 
 
2005 © ООО ПРОМСТРОЙ"
http://www.stropovka.ru/
stropovka@yandex.ru
125212, Москва, Головинское шоссе, дом 5, офис 29
Тел.  (095) 730-31-65
542-26-25